Programın omurgasını oluşturan Araştırma Tabanlı Tasarım Stüdyosu, geleneksel mimari stüdyo pratiklerinin sınırlarını aşarak, güncel kentsel sorunlara disiplinler arası bakış açısıyla yaklaşıyor.
2024 Bahar Dönemi’nde “Araştırma Tabanlı Tasarım Stüdyosu”nda, katılımcılarımız bireysel ilgi alanı ve deneyimleri doğrultusunda belirledikleri proje ve araştırmaları, Ufuk Doğrusöz yürütücülüğünde geliştirdi.
Stüdyo yürütücüsü Ufuk Doğrusöz, 2024 Bahar Döneminin ana temasını “Kentsel Mimarlık” olarak tanımlıyor.
Dönem boyunca, stüdyo kapsamında yapılan çalışmaları destekleyecek tarihsel-kuramsal, ayrıca teknik yönteme ilişkin seminer dizileri, disiplinler arası nitelikte tartışma ve buluşma ortamı sağlayan Cumartesi Aurası konferansları, kolektif düşünme ve üretime yönelik çalışmalar gerçekleştirildi.


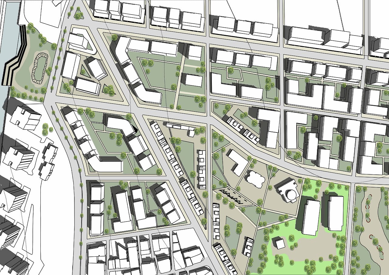
Avcılar-Esenyurt bölgesi, İstanbul’un önemli arterlerinden olan D-100 hattının kuzeyinde, Küçükçekmece Gölü’nün doğusunda yer almaktadır. 1966 yılında Avcılar ilçesi belediye statüsüne sahip olmuştur. Bu dönemde 3194 sayılı imar kanunu geçerlidir. İlk izler 1970’lere dayanmaktadır. Londra Asfaltı’nın bölgeye uzamasıyla beraber sınır oluşturan önemli yol akslarının izleri ortaya çıkmıştır. 1976’da yapılan yasa değişikliğiyle gecekonduların yıkım kararı iptal edilmiş, 1984’ten sonra gecekondu yıkım yasalarına af gelmeye başlamıştır. 80’lerde D-100 etrafında büyük bir yapılaşma ortaya çıkmıştır. 90’larda Firuzköy Caddesinin kuzeyinde oluşan sanayi alanlarından günümüzde sadece oto tamir dükkanları kalmıştır. 2000’li yıllarda D-100 aksı üzerinde metrobüs hattı açılmıştır ve yapılaşma artmıştır. Günümüzde sanayi ve konut alanları bölgede önemli sınırlar olarak öne çıkmaktadır. Kamusal alan ve kültür-sanat alanları yetersizliği, göl etrafında gelişen pasif yeşil alanlar dikkat çekmektedir. Küçükçekmece Lagün gölü ve çevresi ekolojik açıdan kıymetlidir ancak sazlıkların tahribatı çevreyi olumsuz etkilemektedir. Avcılar, İstanbul’un 1. derece riskli deprem bölgesidir. Yapılan çalışmalar incelendiğinde bölgenin deprem için hazır olmadığı tespit edilmiştir.

Ayşe Ceren Öztürk
Avcılar-Esenyurt Kentsel Dönüşümünde Sıkışmışlıktan Boşluğa:
Meydan

Gizem Nur Erbaş
Haydarpaşa-Gebze Banliyö Hattının Kentsel Hafızadaki Yeri ve Eski İstasyon Binaları: Göztepe İstasyonu

Gül Beyza Balcı
Avcılar-Esenyurt Kentsel Dönüşümünde Geçişleri Kurgulamak

Melisa Ovalı
Kent İçi Ekolojik Restorasyon ile Göl Ekosisteminin İyileştirilmesi
Topkapı Sanayi Bölgesi, D-100’ün kuzeyinde, Çırpıcı Deresi’nin doğusunda ve Tem Otoyolu’nun güneybatısında yer almaktadır. Kuzeyi Zeytinburnu ilçesinin Maltepe Mahallesi’ne, güneyi ise Bayrampaşa ilçesine dahildir. Bölge, eski yollardan biri olan ve Eski Kışla Hastanesi’nden geçen Litros Yolu’nun etrafında gelişmiştir. Sur dışında kalan ve kırsal bir görünüme sahip olan bölge, 1950’lerden sonra sanayi tesislerinin kurulması ve yoğun göç nedeniyle coğrafi görünümünü zamanla yitirmiştir. 70 yıl önce şehrin çeperinde gelişmeye başlayan Topkapı Sanayi Bölgesi, bugün İstanbul’un merkezinde kalmıştır. Ülker, Mercedes gibi büyük firmaların yanı sıra birçok imalathane ve iş yeri de bölgede faaliyet göstermektedir. Bölgenin kent içinde olması nedeniyle, sanayi için uygun bir ortam sağlanamamış ve arsa değerlerinin artması sanayinin zamanla boşalmaya başlamasına sebep olmuştur. Yeni iskan ve ruhsatların alınmasıyla birlikte, yolların çevresinde konut projeleri yapılmaya başlanmıştır. Bu yeni yapılaşma ile birlikte alanın kimliği değişmeye başlamıştır. Yapılan bu analizler sonucunda bölgenin yeni fonksiyonlar için potansiyel taşıdığı sonucuna varılmıştır.

Ayşe Nur Akkaya
İstanbul’da Kentsel Yenileme Önerisi : Litros Yolu ve Çevresi

Eda Hatip
Kamusal Alan ve Konut Arakesitinde Meydan Tasarımı

Montaser Mesk
Endüstriyel Şehircilik – Üretim Mekanları Tasarımı

Zeynep Solmaz
Topkapı Sanayi Bölgesi, Maltepe Mahallesi’nde Kentsel Yenileme
Topkapı Sanayi Bölgesi, D-100’ün kuzeyinde, Çırpıcı Deresi’nin doğusunda ve Tem Otoyolu’nun güneybatısında yer almaktadır. Kuzeyi Zeytinburnu ilçesinin Maltepe Mahallesi’ne, güneyi ise Bayrampaşa ilçesine dahildir. Bölge, eski yollardan biri olan ve Eski Kışla Hastanesi’nden geçen Litros Yolu’nun etrafında gelişmiştir. Sur dışında kalan ve kırsal bir görünüme sahip olan bölge, 1950’lerden sonra sanayi tesislerinin kurulması ve yoğun göç nedeniyle coğrafi görünümünü zamanla yitirmiştir. 70 yıl önce şehrin çeperinde gelişmeye başlayan Topkapı Sanayi Bölgesi, bugün İstanbul’un merkezinde kalmıştır. Ülker, Mercedes gibi büyük firmaların yanı sıra birçok imalathane ve iş yeri de bölgede faaliyet göstermektedir. Bölgenin kent içinde olması nedeniyle, sanayi için uygun bir ortam sağlanamamış ve arsa değerlerinin artması sanayinin zamanla boşalmaya başlamasına sebep olmuştur. Yeni iskan ve ruhsatların alınmasıyla birlikte, yolların çevresinde konut projeleri yapılmaya başlanmıştır. Bu yeni yapılaşma ile birlikte alanın kimliği değişmeye başlamıştır. Yapılan bu analizler sonucunda bölgenin yeni fonksiyonlar için potansiyel taşıdığı sonucuna varılmıştır.

Betül özmen
Zeytinburnu Yeşiltepe Mahallesi’nde Kentsel Yenileme

Ege Yazgan
Geçirgen Kent, Geçirgen Toplum

İhsan Celayır
Sosyal ve Ekolojik Kentsel Ağ

İrem Koluksoy
Topkapı Sanayi Bölgesi, Maltepe Mahallesi’nde Kentsel Yenileme

Lamia Şahin
Zeytinburnu’nda Kentsel Yenileme
Araştırma Tabanlı Tasarım Stüdyosunda dönemin ilk ara jürisi gerçekleşti!
Vizyon 2050 sunumunu dinlemek için İstanbul Planlama Ajansı’nı ziyaret ettik!